- Outdoor & Garten
- Gewächshäuser
- Badezimmerausstattung
- Sport und Freizeit
- Türen und Tore
- Werkzeuge und Ausrüstung
- Das Ostervergnügen beginnt hier
- Fenster
- Lagerräumung
- Heim & Inneneinrichtung
- Schuppen & Gartenhäuser als Bausatz
- Trainingsgeräte
- Wohnen & Bauen
- Auto & Garage
- Påskerbjudanden
- Angebote
- Neue Produkte
- Outlet
- Alle Produkte
- Marken
Attefallhaus Viola Silber - 19 m²
Das Produkt wurde eingestellt
Der Platz wird langsam knapp und Sie möchten praktisch und flexibel expandieren? Vielleicht ein Gästehaus auf dem Grundstück, ein Nebengebäude, ein Abstellraum oder ein eigenes Haus für die Kinder im Teenageralter? Ein freistehendes Haus kann beispielsweise auch als Landhaus oder Sommerhaus gut funktionieren.
Baugenehmigung
Dieser Bausatz unterliegt den Regeln für Attefallshus, wo beliebig viele mit einer maximalen Fläche von 25 Quadratmetern als Ergänzung zu einem Ein- oder Zweifamilienhaus gebaut werden dürfen. Beachten Sie, dass die Gesamthöhe 4 Meter nicht überschreiten darf. Im Gegensatz zu Friggebodar kann Attefallhus nicht nur als ergänzendes Gebäude verwendet werden, sondern auch als unabhängige Residenz eingerichtet und genutzt werden.
Erkundigen Sie sich bei der Wohnungsbehörde nach zusätzlichen Vorschriften für befreite Cottages.
Bei Lieferung montagefertig
Dieses Schutzhaus wird als kompletter Bausatz geliefert und ist eine einfache DIY-Lösung zum Zusammenbauen gemäß der beigefügten Zeichnung. Es ist alles enthalten, was für eine komplette Montage benötigt wird, also Nägel, Schrauben etc.
Unbehandelt geliefert
Alle Materialien in diesem Kit werden unbehandelt geliefert. Daher empfiehlt es sich, das Material frühzeitig mit Grundöl, Außengrundierung oder Decklack zu behandeln.
Basic
Für die Gründung sind Sie selbst verantwortlich, Materialien hierfür sind nicht enthalten. Wie das Fundament hergestellt wird, hängt ganz von den Bodenverhältnissen, dem Aussehen des Hauses und Ihren Vorlieben ab. Es kann entweder eine Platte gegossen oder ein Sockelsockel auf beispielsweise Gartenfliesen oder Leichtklinker verwendet werden.
Boden
Holzböden für diesen Bausatz sind im Lieferumfang enthalten.
Dachabdeckung
Die Dacheindeckung für diesen Bausatz ist nicht im Lieferumfang enthalten, kann aber separat erworben werden.
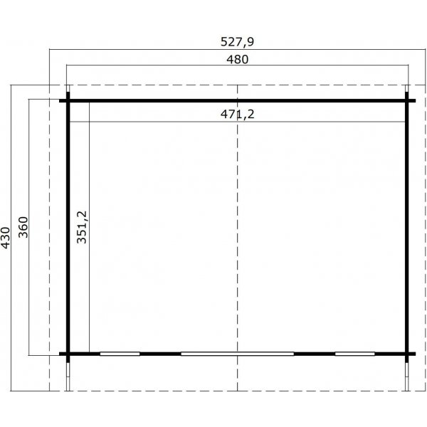
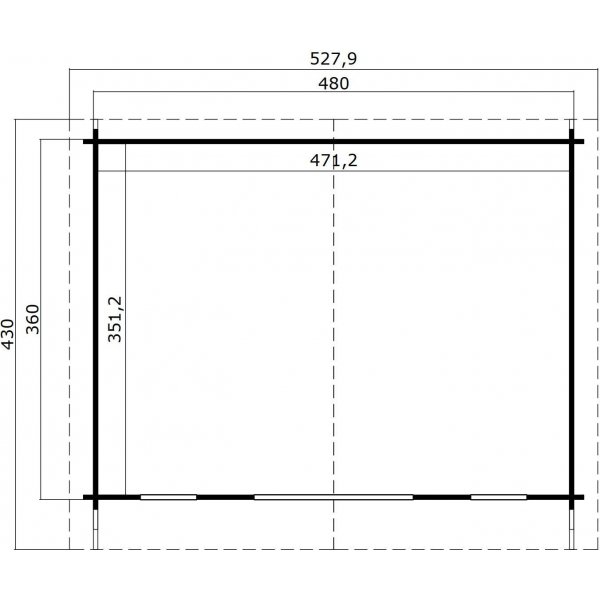
Spezifikationen & Maße:
- Material: Nordische Fichte
- Wandstärke: 44 mm
- Zimmeranzahl: 1 Stk
- Behandlung: unbehandelt
- Standardmaße: 500 x 380 cm
- Wandmaße: 480x360 cm
- Fundamentbretter: 45x45
- Grundfläche: 16,55 m²
- Volumen: 40,09 m³
- Wandhöhe: 216,6 cm
- Spitzenhöhe: 267,9 cm
- Dank Überhang vorne: 50 cm
- Dachbretter: 18x90
- Dachfläche: 23,22 m²
- Dachneigung: 12,1°
- Bodenbretter: 18x90
- Türen:
- Art der Tür: Doppeltür
- Menge: 1 Stk
- Türabmessungen: 1588x1957
- Fenster:
- Fenstertyp: Einzelfenster, nach innen öffnend
- Menge: 4 Stk
- Fensterabmessungen: 560x1780
So gehen wir mit Kundenrezensionen um:
Wir stellen sicher, dass unsere Produktbewertungen von echten Kunden stammen, durch folgenden Prozess:
Nach jeder ausgelieferten Bestellung senden wir dem Kunden per E-Mail einen eindeutigen Link. Über diesen Link kann der Kunde ausschließlich die spezifischen Produkte bewerten, die in der jeweiligen Bestellung enthalten waren – andere Produkte können über denselben Link nicht bewertet werden. Auf der Bewertungsseite hat der Kunde zudem die Möglichkeit, uns als Händler zu bewerten. Diese Methode garantiert, dass alle Rezensionen von Kunden stammen, die die bewerteten Produkte tatsächlich gekauft und erhalten haben.
Veröffentlichung von RezensionenWir veröffentlichen alle Rezensionen, die unseren Richtlinien entsprechen, unabhängig von der Bewertung. Das bedeutet, dass sowohl positive als auch negative Meinungen angezeigt werden, solange sie keine unangemessene Sprache, persönlichen Angriffe enthalten oder irrelevant sind.
Rezensionen, die sich ausschließlich auf Lieferprobleme (z.B. Verspätungen) beziehen, werden nicht auf der Produktseite veröffentlicht, da sie nicht das Produkt selbst bewerten. Solche Anmerkungen können jedoch in der Händlerbewertung hinterlassen werden.
Berechnung der DurchschnittsbewertungDie durchschnittliche Bewertung eines Produkts wird als Mittelwert aller veröffentlichten Rezensionen für genau dieses Produkt angezeigt.
Mehr lesenIch muss leider 1 Punkt abziehen, da die Lieferzeit sehr lang war. Wir hatten das Gewächshaus im Januar bestellt und geliefert wurde es erst Ende April. Der Kontakt war leider nur per E-Mail möglich, aber immer freundlich und Zeitnah. Als Ausgleich haben wir etwas Rabatt erhalten. Am Ende sind wir sehr zufrieden und würden auch wieder bei Freddy bestellen.
Volle 5 Sterne + für den Kundendienst und Service!!!! Wir hatten eine Rückfrage zu den automatischen Fensteröffner und es wurde super schnell und unkompliziert geholfen und gehalten was versprochen wurde!!! FAZIT immer wieder gern und eine 100 prozentige Weiterempfehlung von unserer Seite her!!!
- Niedrige Preise & großes Sortiment
- Nur hochwertige Produkte!
- Zahlen Sie 14 Tage nach Lieferung ohne Aufpreis!
- Schnelle Lieferung!
- Ausgezeichneter Kundenservice!
- Unser kompetenter und zuvorkommender Kundenservice steht Ihnen gerne zur Seite und beantwortet alle Fragen rund um Ihren Kauf!
Indem Sie Mitglied werden, akzeptieren Sie Freddyhaus.de Datenschutzbestimmungen.














